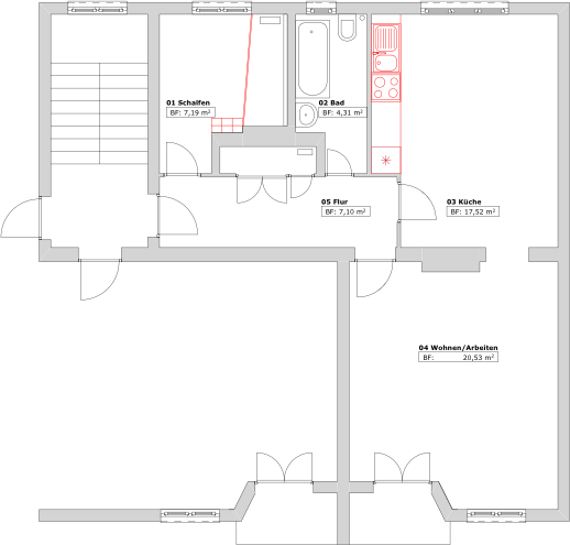
Durch den Tausch der kleinen Küche und des Schlafzimmers einer Zweizimmer Wohnung entsteht eine großzügige Wohnküche, ein Kinderzimmer und ein Wohn/Schlaf/ und Arbeitszimmer


Durch den Tausch der kleinen Küche und des Schlafzimmers einer Zweizimmer Wohnung entsteht eine großzügige Wohnküche, ein Kinderzimmer und ein Wohn/Schlaf/ und Arbeitszimmer

PROJEKTE / BÜRO / KONTAKT / PRESSE / DAVID MEYER
Fertigstellung 2012